展厅百科2022-04-19 2,402 次来源:原创
展厅设计如今已经不是某个领域的专题,任何企业、组织、团体都能建设自家的展厅。展厅设计布置的目的是为了获得潜在的商机,赢得客户的信任,并且提升品牌的知名度。展厅布置是对展厅的直观展示,那么展厅布置图是什么?小编就为大家讲解一下!

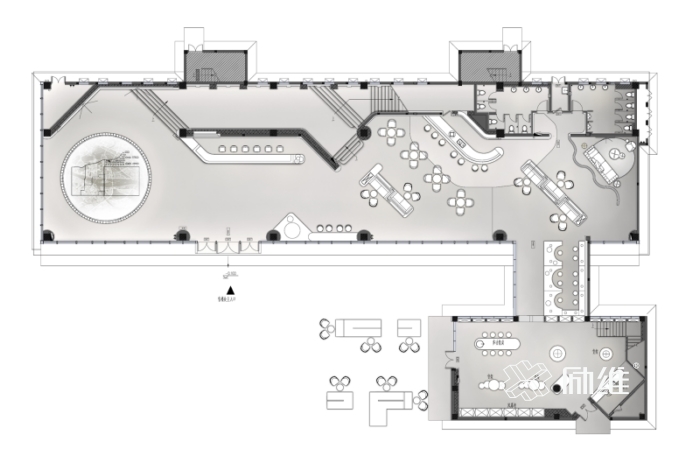
展厅设计是空间设计的一种,那么在空间里面就一定会有物体要摆放,展厅设计就需要对这些展厅中用到的设备,根据整个展厅的空间情况进行放置,为了直观的表示出来,就需要做平面图来展示,这个图就是展厅设计平面布置图。一般情况下我们简称为展厅平面图,或者说是CAD图,因为这个图是采用AutoCAD这款软件绘制的,所以平常叫CAD图会比较多一些。
1.功能合理,重点突出:刚开始拿到原始平面图,每个设计师思考点都是有所不同,有些设计师喜欢从logo方向去思考,有些从图腾方面切入,无所谓好坏,我个人倾向从功能出发,跟业主沟通好他们需求,了解表达重点,把展陈内容先按比例划分好。
2.空间层次丰富,移步一景:按照我个人习惯,脑海里冒出来的第一个平面布置构想,直接排除,因为按照设计惯性,第一反应出来的方案,跟普通设计师出的方案不会有太大差别的,没特色!参观空间要有层次变化,但要把控好这个尺度,张弛有度,不要过。
3.合理消化承重柱,承重墙:有些空间柱子很多,不要让它们明显的显露出来,除非有特别的设计想法,我一般是把它们消化在空间造型里面,或者显露在设备间等不影响参观的地方。
4.空间转换要自然:墙体转折不要出现明显锐角,锐角给人尖锐的视觉感,通常转折处我会做倒角处理,使过渡更加自然。
5.空间利用率最大化:有些展厅空间本来就不大,不要为了纯空间造型,浪费过多空间面积,多余的边角空间可以内嵌做展示,或者作为设备间等方式进行合理利用。
6.参观顺序,顺时针:我们看文字都习惯从左往右,看展陈内容顺序也尽量按照我们正常参观习惯来做,顺时针的参观布局,个人认为参观会比较舒服。
7.布局细化,刻画到位:做概念方案期间,展台、展墙层次,显示屏...等等,能画详细尽量画详细,这样显得布局考虑清晰到位,细节尺寸稍微有些出入没啥问题,反正具体做完效果图,空间布局图还要再次深化的。
8.标题标注,层次分明:通常我们会把展陈内容标注到平面布置图上,一、二、三级标题,字体大小层级要严格区分开,这样客户观看才不会显得错乱,我个人习惯是大小,数字化区分。
9.遵守消防规范要求:不同的建筑类型楼层都有相对应的展厅空间消防规范要求,通道宽度,距离消防疏散出口距离,开门数量等等,这些可以百度具体搜索,在这就不具体拓开了。
励维展示,展陈一站式精准服务商,秉承“利他”的文化初心,致力于构建“共创、共享、共生、共赢”的展陈生态平台。
公司地址:中国湖北武汉市江岸区兴业路136号OVU创客星7F-701
官方网站:https://www.chinalivi.com/(励维展示)
联系我们:189-4291-6682(小维)

通过上文我们了解到了 展厅布置图是什么?布置图的做法详解 ,有需要的朋友赶紧收藏起来。